Salle de Réception:  Sen Sabai

Une demande personnalisée

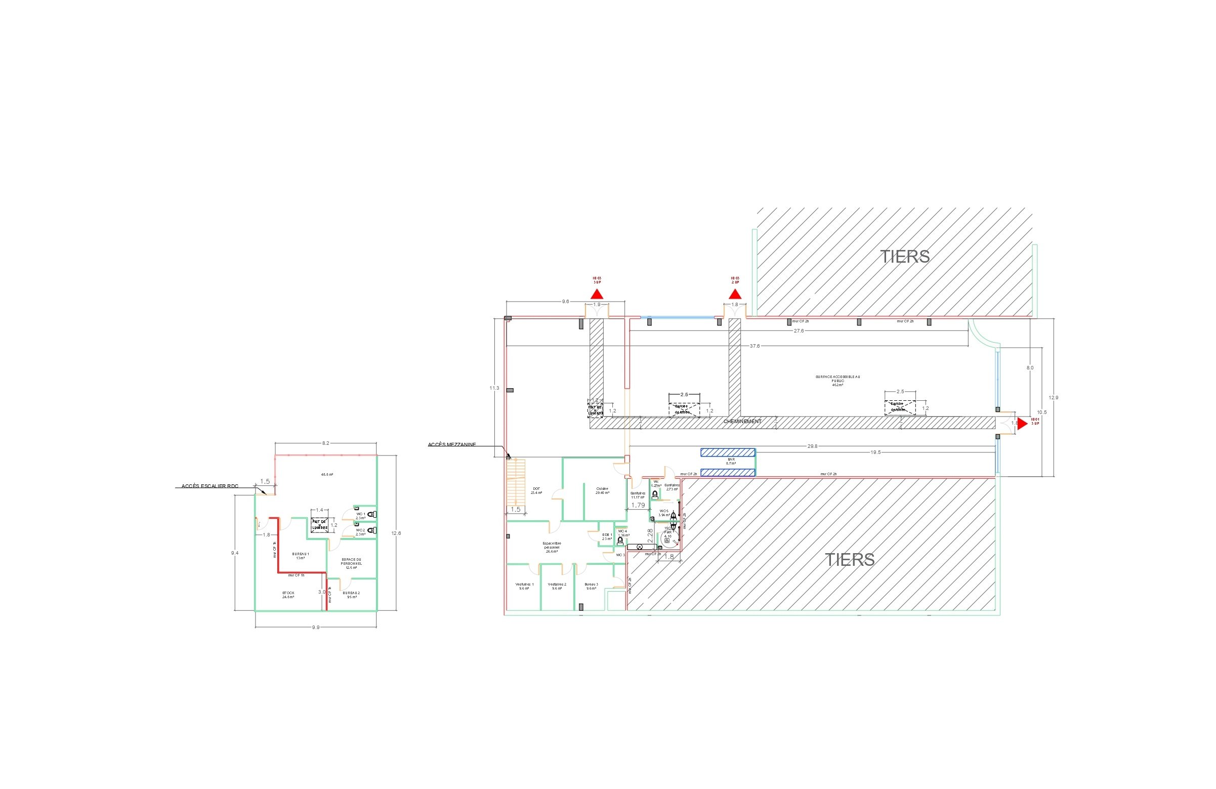
Tout commence par un besoin, le besoin de notre client était d’avoir un plan en 2D afin de présenter les documents aux déclarations préfectorales. Nous l’avons donc accompagné pour la création des nouveaux plans 2D.

D’abord, nous nous apprenons à nous connaître et faisons passer son besoin avant tout le reste. La communication continuelle permet d'instaurer un climat de confiance dès le départ.

Par la suite, nous offrons une gamme complète de services d'architecture et de conception à leur meilleure convenance.

Pour enfin, concevoir des aménagements créatifs, rentables et fonctionnels pour des projets de bureaux commerciaux, de commerces de détail et d'hôtellerie.

Crédits

Aziz AL JAWFI

FONDATEUR / DESSINATEUR PROJETEUR